Mahan Rykiel Associates

Full Service Landscape Architecture

Our Services Sectors

Urban Design

Planning and Development

Public Parks and Civic Plazas

International Projects

Mid-Atlantic

Retail and Repositioning

Higher Education

Senior Living

Hospitality

Healthcare

Placemaking

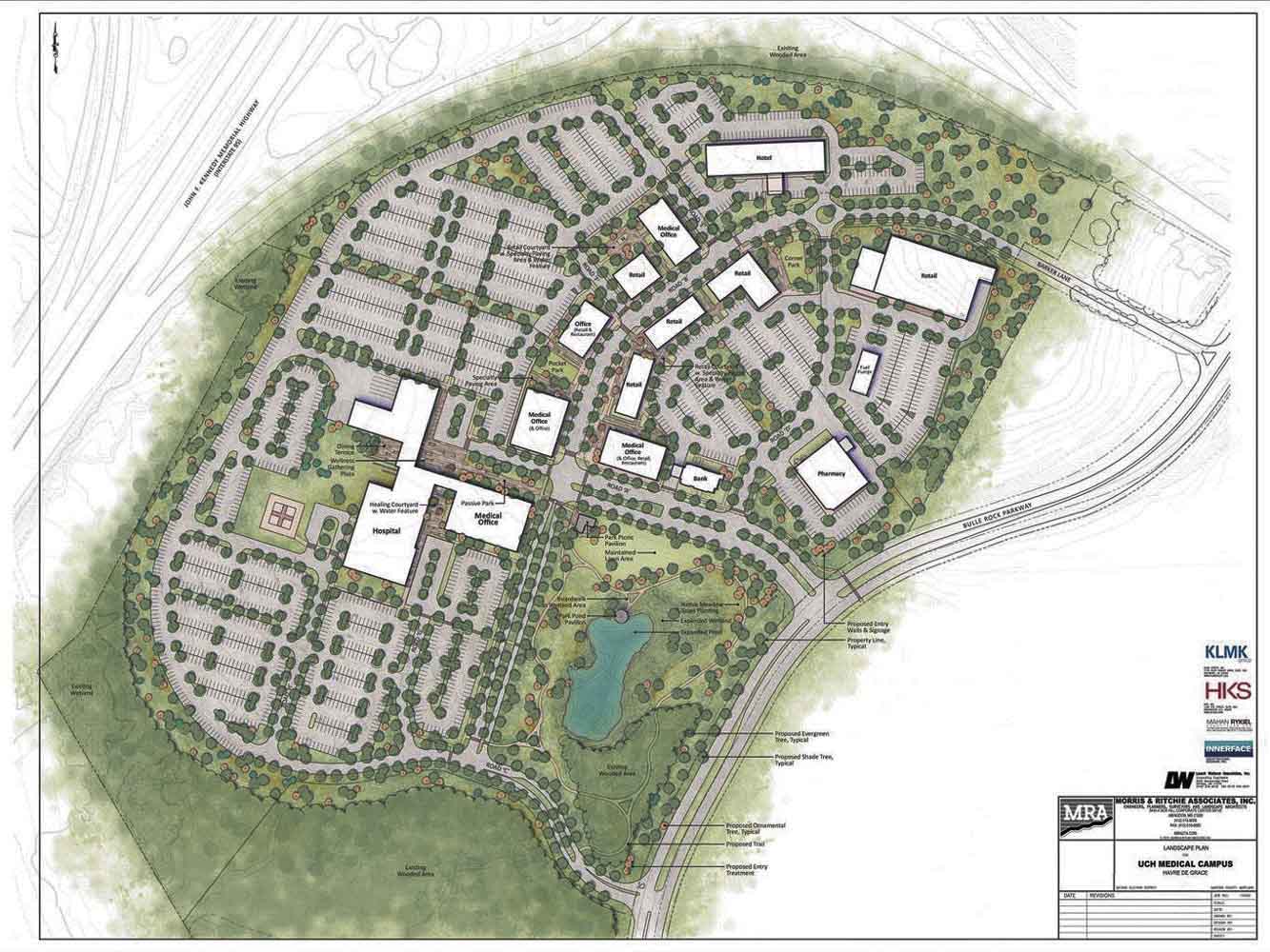
96-Acres of Healing Power Upper Chesapeake Health Medical Campus- UMMS Best Viewed Horizontally Best Viewed Horizontally
  • Upper Chesapeake Health Medical Campus- UMMS

    Havre de Grace, Maryland

    The Upper Chesapeake Health Medical Campus is a mixed use campus on a 96-acre site that will enhance community health, wellness and prevention in state of the art facilities. Phase I, on approximately 30-acres, will include a new seven story, 105 bed hospital. Future phases will include medical office space, support office, retail, and a hotel in a vibrant, mixed use “Main Street” setting.

    Mahan Rykiel Associates (MRA) worked with the design team, Upper Chesapeake Health, and The University of Maryland Medical System to provide site planning and landscape architecture for the 30% schematic design (Certificate of Need) of this mixed use site. Phase I will include parking, a trail system, amenity spaces, a park, and the “gateway” to the project.

    MRA’s design concept for the Replacement Hospital reflects the character of the site: rolling topography, open areas bounded by woods, broad views, and native plant communities. Site materials and design concepts will be compatible with the architecture, and link indoor with outdoor spaces. Views and access to nature are emphasized for the positive impact they provide for patients and staff.

    MRA’s design seeks opportunities to engage the available areas of the site to incorporate the Hospital’s mission of health and wellness.